สวัสดีครับพี่น้องชาว Your Condo วันนี้ทีมงานมีโอกาสไปเยี่ยมชมโครงการ Platinum Factory 3 (คลองโยง) ตัวโครงการตั้งอยู่ในทำเลดีใกล้ ถนนศาลายา-บางภาษี การเดินทางเข้า-ออกสะดวก ถนนกว้าง เหมาะสำหรับผู้เริ่มทำธุรกิจขนาดย่อม SME
ตัวโครงการเป็นรูปแบบโกดังโรงงาน 2 ชั้น กว้าง 28 x 27 เมตร พื้นที่ใช้สอยมีขนาดตั้งแต่ 500 – 851 ตร.ม. บนที่ดินเริ่มต้นขนาด 344 ตร.ว. ภายในอาคารมี Office 2 ชั้น ,ห้องครัว,ห้องรับแขก,ห้องเอนกประสงค์,ห้องน้ำ และที่จอดรถตั้งแต่ 3-5 คันภายในรั้วบ้าน โดยอาคารออกแบบในสไตล์โมเดิร์นที่ทันสมัยและเรียบง่าย เน้นความโปร่งสบายด้วยหน้าต่างขนาดใหญ่เปิดรับแสงธรรมชาติ ถนนภายในโครงการกว้าง 10 เมตร มีระบบรักษาความปลอดภัยและกล้องวงจรปิดตลอด 24 ชม. ในราคาเริ่มต้น 8.86 ล้านบาท
ชื่อโครงการ Platinum Factory 3 (คลองโยง)
ทำเลที่ตั้ง ตั้งอยู่บ้านเลขที่82/1 หมู่ 4 ตำบลคลองโยง อำเภอพุทธมณฑล จ.นครปฐม
พิกัด : 13.880552, 100.283513
เจ้าของโครงการ บริษัท คอมฟอร์ท แมกซ์ จำกัด
ลักษณะโครงการ โกดังโรงงาน 2 ชั้น
พื้นที่โครงการ 50 ไร่
จำนวนบ้าน 36 ยูนิต มีแบบบ้านทั้งหมด 4 แบบ
พื้นที่ใช้สอย เริ่มต้น 500-851 ตร.ม.
เนื้อที่บ้าน เริ่มต้น 344-600 ตร.วา.
จำนวนห้อง 1 ห้องนอน 2 ห้องน้ำ 1 ห้องรับแขก 1 ห้องครัว
ที่จอดรถทั้งหมด 3-5 คัน
ปีที่สร้างเสร็จ สร้างเสร็จพร้อมเข้าอยู่บางส่วน
ราคา เริ่มต้น 8.86 -14.92 ล้านบาท
ค่าส่วนกลาง หลังละ 3,000 บาท/เดือน
สถานที่สำคัญใกล้เคียง
ตลาดสุขดี : 10 กม.
ตลาดศาลายา : 11 กม.
The Salaya : 10.5 กม.
The Brio : 15 กม.
Makro ศาลายา : 13 กม.
สวนพุทธมณฑล : 16.5 กม.
Tesco Lotus ศาลายา : 17 กม.
Central Plaza ศาลายา : 15.9 กม.
มหาวิทยาลัยมหิดล ศาลายา : 12 กม.
ศูนย์การแพทย์ กาญจนาภิเษก ม.มหิดล : 18 กม.
สิ่งอำนวยความสะดวก
1.กล้องวงจรปิด
2.ระบบรักษาความปลอดภัย 24 ชั่วโมง
จุดเด่นของโครงการ
1.ทำเลดี เดินทางสะดวกใกล้ถนนบางใหญ่-กาญจนบุรี
2.ถนนภายในกว้าง 10 เมตร
3.มิเตอร์ไฟฟ้า 30/100 แอมป์ 3 เฟส
4.โทรศัพท์ลอินเตอร์เน็ตความเร็วสูง
5.ออกแบบทันสมัย ใช้วัสดุคุณภาพดี
6.บริการหลังการขาย ติดต่อประสานงาน ยื่นขออนุญาตใบประกอบกิจการโรงงาน (รง.4)
7.มีระบบรักษาความปลอดภัยตลอด 24 ชม. พร้อมกล้องวงจรปิด
แนวคิดการออกแบบโครงการ
ความรู้สึกใหม่ของโครงการอุตสาหกรรม มีการออกแบบเชิงวิศวกรรม ที่มุ่งการให้ประโยชน์อย่างสูงสุด รูปแบบอาคาร มีการผสมผสาน เรื่องความทันสมัยและพื้นที่ใช้สอย ได้อย่างลงตัว เป็นที่พักอาศัยและโรงงานในที่เดียวกัน ทุกโครงสร้างแข็งแกร่งทนทาน ก่อสร้างดีด้วยวัสดุมาตรฐาน ควบคุมงาน โดยวิศวกรผู้มีประสบการณ์ มั่นใจในการออกแบบทุกหลัง ออกแบบได้ถูกต้อง ตามหลักฮวงจุ้ย สร้างความภูมิฐานให้แก่ผู้ประกอบการทุกระดับ ตั้งอยู่บนพื้นที่ เขตอุตสาหกรรมและคลังสินค้า เป็นแหล่งนิคมอุตสาหกรรมใหม่ ที่มีอัตราการเติบโตสูง เชื่อมต่อการเดินทางสู่ถนนสายสำคัญได้อย่างรวดเร็ว
ที่ตั้งโครงการ
ที่ตั้ง หมู่ 4 ตำบลคลองโยง อำเภอพุทธมณฑล จ.นครปฐม
พิกัด 13.880552, 100.283513
การเดินทางเข้าสู่โครงการ
ตั้งอยู่ติดถนน มะเกลือ 4 เชื่อมต่อจากถนนทางหลวงชนบท 3004 ที่ตั้งของโครงการอยู่ในเขตจังหวัดนครปฐมแต่เป็นช่วงรอยต่อระหว่าง 3 จังหวัดด้วยกันคือกรุงเทพ, นครปฐม และนนทบุรี จึงถือว่าสามารถเข้าออกกรุงเทพได้อย่างสะดวก โดยสถานที่สำคัญหลักๆของทำเล คือ มหาวิทยาลัยมหิดล วิทยาเขตศาลายา และสวนพุทธมณฑล
ในเรื่องของการเดินทาง การเข้าออกโครงการจะอยู่ที่บริเวณแยกพุทธมณฑล สาย 4 โดยมีซอยศาลาธรรมสพน์เป็นตัวเชื่อม เข้ากับถนนบรมราชชนนี ที่ใช้เป็นเส้นทางหลักในการเข้าเมืองไปเชื่อมต่อกับถนนเส้นสำคัญอื่นๆ เช่น ถนนกาญจนาภิเษก ที่วิ่งขึ้นเหนือจะเข้าสู่โซนบางใหญ่-บางบัวทอง หรือวิ่งทางใต้ใช้งานไปยังเพชรเกษม-พระราม 2 และอีกเส้นทางคือถนนราชพฤกษ์ที่ใช้สำหรับเข้าเมืองไปทางฝั่งธนบุรี ข้ามสะพานตากสินสู่สาทร หรือจะวิ่งตรงยาวไปตามถนนบรมราชชนีออกสู่ปิ่นเกล้าที่มีสะพานปิ่นเกล้าและสามารถ ข้ามฝั่งไปยังโซนพระบรมมหาราชวัง ส่วนถนนพุทธมณฑลตั้งแต่สาย 1-5 ทำหน้าที่เชื่อมระหว่างถนนบรมราชชนนีกับถนนเพชรเกษม
ส่วนทางออกจากโครงการ ออกจากถนนมะเกลือ 4 ถ้าไปทางตะวันตกก็จะมุ่งหน้าสู่ อ.นครชัยศรี ถ้าไปทางเหนือ มุ่งหน้าสู่ อ.บางเลน และลงใต้จะเข้าสู่ ศาลายา และเชื่อมต่อไปยังกรุงเทพมหานคร
สิ่งอำนวยความสะดวกรอบๆโครงการ
ทำเลของโครงการมีอำนวยความสะดวกรองรับการใช้งานหลากหลาย เริ่มจากประเภทตลาดจะมีตลาดเกษตรกรอยู่ทางแยกถนนทางหลวงชนบท 4031 ห่างจากโครงการประมาณ 850 เมตร ถัดมาเป็น ตลาดสุขดีที่อยู่ในระยะห่างจากโครงการประมาณ 5 กิโลเมตร และถัดไปออกจากถนนทางหลวงชนบท 3004 จะเป็นตลาดศาลายา ต่อมาเป็นคอมมูนิตี้มอลล์ มีให้เลือกทั้ง The Salaya และ The Brio ส่วนห้างซูเปอร์มาร์เก็ตมีทั้ง Makro ,Tesco Lotus และ HomePro และสุดท้ายห้างที่ครบครันที่สุดถือเป็นระดับแม่เหล็กของทำเลคือ Central Plaza ศาลายา
บริเวณใกล้เคียงมีสถานที่หน่วยงานและราชการอยู่ ทั้งโรงพยาบาลส่งเสริมสุขภาพตำบล ,สำนักงานเทศบาลตำบลคลองโยง , ตลาดเกษตรกร,แหล่งร้านอาหารและของกินจะมีอยู่บริเวณริมถนนศาลายา-บางภาษี เช่นร้าน 7-11ร้านอาหารตามสั่ง ร้านหมูกระทะ เป็นต้น นับได้ว่ายังพอมีแหล่งอาหารการกินอยู่บริเวณใกล้เคียง เดินทางไม่ใกล จากที่ตั้งโครงการ
แนวโน้มทำเลในอนาคต
1.ในอนาคตทำเลศาลายาจะมีรถไฟฟ้าสายสีแดงอ่อน ส่วนต่อขยายช่วงตลิ่งชัน-ศาลายา โดยสถานีที่ใกล้ที่สุดคือสถานีศาลายา ระยะห่างจากโครงการประมาณ 13 กิโลเมตร โดยคาดว่าจะประกวดราคาช่วงปลายปี 61 และเริ่มก่อสร้างกลางปี 62 จะแล้วเสร็จประมาณปี 2564 ทำให้พื้นที่ใกล้เคียงมีความเจริญมากขึ้นในอนาคต
2.การก่อสร้างโครงการ Motorway บางใหญ่-กาญจนบุรี มีระยะทางรวมประมาณ 96 กิโลเมตร มีความกว้างขนาด 4-6 ช่องการจราจร ขณะนี้โครงกาได้ผ่านการวิเคราะห์ผลกระทบสิ่งแวดล้อม EIA แล้ว คาดว่าจะแล้วเสร็จภายในปี 2563
การเดินทาง
จุดเด่นอีกอย่างหนึ่งของโครงการ คือ การเลือกใช้เส้นทางได้หลากหลาย วันนี้จะยกตัวอย่างการเดินทางเส้นทางโดยใช้ทางพิเศษศรีรัช-วงแหวนรอบนอก เชื่อมไปยัง ถนนบรมราชชนนีฝั่งขาออกไปยังศาลายา วิ่งผ่านแยกต่างระดับฉิมพลีไปจนถึงแยกพุทธมณฑลสาย 4 ให้เลี้ยวขวาตามป้ายศาลายา ผ่านหน้าม.มหิดล แล้วจึงเข้าสู่ถนนทางหลวงชนบท 3004 เลี้ยวซ้ายไปทาง ทางหลวงชนบท 4031 และเลี้ยวซ้ายเข้าถนน มะเกลือ 4 เดินทางสู่ โครงการ Platinum Factory 3
โดยมีภาพประกอบการเดินทางดังนี้
เดินทางจากเส้นทาง ทางพิเศษศรีรัช-วงแหวนรอบนอกเพื่อมุ่งหน้าสู่ถนน บรมราชชนนี
ขับตามเส้นทาง และชิดซ้ายลงทางออก ถ. สิรินธร
ลงจากทางพิเศษให้ชิดขวาเพื่อขึ้นสะพานไปยัง ถ.สิรินธร(ตลิ่งชัน) เพื่อมุ่งหน้าสู่ถนนบรมราชชนนี
จากนั้นขับตรงไปตามเส้นทางถนนบรมราชชนนีมุ่งหน้าสู่นครปฐม
จากนั้นขับตรงไปตามเส้นทางถนนบรมราชชนนี ผ่านแยกต่างระดับฉิมพลี (ถนนกาญจนาภิเษก)
ก่อนถึงถนนพุทธมณฑล สาย 4 จะมีป้ายออกทางขนานสู่ ศาลายา ให้ชิดซ้าย
หลังจากออกทางขนานมาแล้ว ขับผ่าน ม.มหิดล – ศาลายา เลยจาก ม.มหิดลมา ให้เลี้ยวซ้ายที่บริเวณหอนาฬิกาหน้าตลาดศาลายา
หลังจากนั้นจะเจอกับสามแยกไฟแดงแรก ให้เลี้ยวขวาเข้าสู่ถนนทางหลวงชนบท 3004 (ด้านขวาจะเป็นสถานีตำรวจภูธรพุทธมลฑล)
วิ่งมาตามถนนทางหลวงชนบท 3004 ผ่านThe Salaya และตรงไปเรื่อยๆ
จากนั้นเมื่อเห็น ตลาดนัดเกษตรกรด้านขวามือ และซ้ายมือไปถนนที่เข้าสู่ทางหลวงชนบท 4031 ให้เลี้ยวซ้ายเข้าสู่ทางหลวงชนบท 4031
วิ่งไปตามเส้นทาง จากนั้นให้เลี้ยวซ้ายแยกแรก เพื่อเข้าสู่ถนน มะเกลือ 4
ขับตรงไปตามเส้นทางประมาณ 450 เมตร มุ่งหน้าสู่โครงการ Platinum Factory 3 โครงการจะอยู่ด้านขวามือ
สรุปการเดินทาง : ทางพิเศษศรีรัช-วงแหวนรอบนอก > ถนนบรมราชชนนี > แยกพุทธมณฑลสาย 4 > ผ่านหน้า ม.มหิดล > ถนนทางหลวงชนบท 3004 > ถนนทางหลวงชนบท 4031 >ถนนมะเกลือ 4 > Platinum Factory 3
เจาะลึกตัวโครงการ
สถานที่สำคัญบริเวณโครงการ
ตลาดสุขดี : 5 กม.
ตลาดศาลายา : 11 กม.
The Salaya : 10.5 กม.
The Brio : 15 กม.
Makro ศาลายา : 13 กม.
สวนพุทธมณฑล : 16.5 กม.
Tesco Lotus ศาลายา : 17 กม.
Central Plaza ศาลายา : 15.9 กม.
มหาวิทยาลัยมหิดล ศาลายา : 12 กม.
ศูนย์การแพทย์ กาญจนาภิเษก ม.มหิดล : 18 กม.
แยกและถนนสำคัญใกล้เคียง
ถนนบรมราชชนนี : 14 กม.
ถนนกาญจนาภิเษก : 21 กม.
ถนนราชพฤกษ์ : 24 กม.
การเข้าถึงโครงการ
ตัวโครงการตั้งอยู่ในซอยโดยสามารถเข้าสู่โครงการได้ 2 ซอยคือ ซอยถนนมะเกลือ โดยเข้าซอยไปประมาณ 600 เมตร แต่ถนนเส้นนี้จะกว้างประมาณ 5 เมตร รถใหญ่ไม่สามารถผ่านเข้าได้ ส่วนอีกซอยคือ ซอยฝั่งตรงข้ามตลาดเกษตรกร โดยถ้าขับมาจากถนนศาลายา จะเลี้ยวซ้ายเข้าซอยนี้(ถนนทางหลวงชนบท4031 และขับตรงไปประมาณ 350 เมตร จากนั้นเลี้ยวซ้ายเข้าซอยแรก (ถนนมะเกลือ 4) และขับตรงไปประมาณ 450 เมตรก็จะถึงที่ตั้งโครงการ ถนนนี้จะกว้างกว่าและรถใหญ่สามารถวิ่งเข้าโครงการได้
ถนนมะเกลือ
เลี้ยวซ้ายเข้าสู่ ถนนมะเกลือ 4
บริเวณทางเข้าโครงการมี รปภ และระบบรักษาความปลอดภัย ด้านหน้ามีไม้กระดกและป้อมยาม
ภายในโครงการจะมีสำนักงานขายอยู่ขวามือ ตกแต่งสไตล์ Country Industrial เข้ากับตัวโครงการ ด้านหน้าจัดสวนหย่อมให้ความร่มรื่น
ผ่านหน้าประตูโครงการเข้ามาจะมีถนนเมนกว้าง 10 เมตร ตัดตรงเข้าไปสุดที่ดินโครงการ และมีอาคารตั้งอยู่ริมถนนเมนหันหน้าเข้าหากัน
ภายในโครงการมีทั้งที่ดินเปล่าแบ่งขายและตัวอาคารที่ก่อสร้างไว้แล้วและบางส่วนกำลังก่อสร้างอยู่
ถัดจากสำนักงานขายเข้าไปจะเป็นโซนที่ตั้งอาคารซึ่งลักษณะการขายโครงการนี้มี 2 รูปแบบคือ ขายที่ดินเปล่า และขายที่ดินพร้อมอาคาร/และให้เช่าเป็นรายเดือน
ที่ดินเปล่าภายในโครงการ โดยหากเป็นที่ดินเปล่าจะขายตารางวาละ 13,000 บาท และหากแปลงมุมจะคิดเพิ่มเป็นตารางวาละ 15,000 บาท
แบบอาคารภายในโครงการ จะมี 4 รูปแบบแบ่งตามพื้นที่ใช้สอยคือ
- แบบ A ตัวโกดังขนาด:กว้าง 28 เมตรx27 เมตร มีพื้นที่ใช้สอยรวมทั้งหมด 851 ตารางเมตร มีออฟฟิต 2 ชั้น ชั้น 1 ขนาด15×5 เมตร 75 ตร.ม มีห้องรับแขก ห้องโถง เคาร์เตอร์ครัว มีห้องน้ำ 1 ห้องชั้น 2 ขนาด15×5 เมตร 75 ตร.ม มีห้องทำงาน 1 ห้อง ห้องนอน 1 ห้อง เคาร์เตอร์ครัว ห้องน้ำ 1 ห้อง
-พื้นที่ใช้สอยอาคาร 181 ตารางเมตร
-พื้นที่ใช้สอยโรงงาน 670 ตารางเมตร
-ความสูงตัวโกดัง 10.275 เมตร.
ตัวอาคารออกแบบสไตล์โมเดิร์นทันสมัย สามารถจอดรถภายในพื้นที่ได้หลายคัน
ด้านหน้าออกแบบให้มีกระจกเยอะๆ เพื่อความโปร่งโล่งสบาย และประหยัดพลังงาน บานหน้าต่างเป็น Aluminium อบสีดำ กระจกเขียวตัดแสง
ภายในอาคารมีประตูม้วนเหล็กขนาดใหญ่ เพื่อเป็นทางเข้า-ออกโกดังซึ่งจะอยู่บริเวณด้านหลังอาคาร โดยรถบรรทุกสามารถเข้า-ออกได้ในบริเวณนี้ โดยถนนเข้าตัวอาคารจะเทคอนกรีตไว้ให้
มีระแนงตกแต่งด้านหน้าเพื่อความสวยงามทันสมัย ผนังด้านหน้าทางเข้าตัวอาคารตกแต่งด้วยกระเบื้องลายไม้สีสันสวยงาม
เข้ามาในตัวออฟฟิศส่วนแรกเจอกับห้องโถงและห้องรับแขก พื้นปูด้วยกระเบื้องแกรนิตโต้ 60 x 60 ซม. ผนังฉาบเรียบทาสีขาว โคมไฟดาวน์ไลท์สีขาว พื้นที่ภายในโปร่งโล่ง สามารถเชื่อมต่อไปยังโซนต่างๆของอาคารได้
ซ้ายมือมีหน้าต่างบานเลื่อน สามารถเปิดและมองเห็นพื้นที่ภายในโกดังได้
ถัดไปเป็นส่วนของห้องน้ำ ภายในปูกระเบื้องเซรามิค ทั้งพื้นและผนัง สุขภัณฑ์ญี่ห้อ American Standard
โซนห้องครัวจะอยู่บริเวณด้านหลังห้องน้ำ โครงการแถมเคาน์เตอร์ชุดครัวปูกระเบื้องพร้อมซิ้งค์ล้างจานให้
ด้านข้างห้องครัวจะเป็นบันไดทางขึ้นไปชั้น 2 พื้นบันไดปูกระเบื้องสีขาว ราวบันไดเป็นเหล็กทาสีดำ มีห้องเก็บของอยู่ใต้บันได
ออฟฟิศชั้น 2 พอขึ้นบันไดมาด้านซ้ายมือจะเป็นห้องน้ำและห้องครัว ส่วนบริเวณโถงหน้าบันไดที่ขึ้นมาจะเป็นส่วนรับประทานอาหาร
ด้านขวามือพอขึ้นบันไดมาจะเป็นส่วนห้องรับแขก โดยโซนนี้ถูกออกแบบมาให้โปร่งโล่ง มีกระจกใส 2 ฝั่ง สามารถมองเห็นพื้นที่ภายในโกดังได้ และอีกฝั่งสามารถมองเห็นฝั่งด้านหน้าอาคารได้ ด้านนอกมีระเบียง สามารถออกไปรับลมชมวิวได้
พื้นชั้นบนปูกระเบื้องแกรนิตโต้ขนาด 60×60 cm. ผนังทาสีโทนสว่างเพื่อความโปร่งโล่ง บริเวณทางออกระเบียงมีประตูบานเลื่อนขนาดใหญ่ยาวตั้งแต่พื้นจนถึงฝ้าเพดาน
ชั้นบนมีหน้าต่างบานเลื่อนที่สามารถเปิดและมองเห็นภายในโกดังได้
พื้นที่โกดังจะอยู่ด้านล่าง ซึ่งจะเชื่อมต่อกับพื้นที่ออฟฟิศชั้นล่าง โดยพื้นที่โกดังจะลดระดับต่ำกว่าพื้นออฟฟิศชั้นล่างมาประมาณ 60 cm. สามารถเดินลงบันไดและเข้าสู่พื้นที่โกดังได้เลย พื้นโกดังเป็นปูนขัดมัน
พื้นที่โกดังมีความสูง 10.275 เมตร สามารถเก็บของและติดตั้งเครื่องจักรได้ หลังคาเป็น Metal Sheet บุPE ฟอยด์กันร้อน ด้านบนมีหลังคาโปร่งแสงเป็นแนวยาว ช่วยให้ภายในโกดังมีความสว่างและประหยัดไฟฟ้าเพิ่มขึ้นด้วย
พื้นที่โกดังกว้างขวาง เหมาะสำหรับทำโรงานขนาดย่อมได้อย่างดี
พื้นที่โกดังจะมีห้องน้ำ 4 ห้อง ซึ่งอยู่ด้านหลังออฟฟิศ
ประตูทางเข้า-ออกโกดังเป็นประตูม้วนเหล็ก รถบรรทุุกสามารถวิ่งเข้า-ออกได้
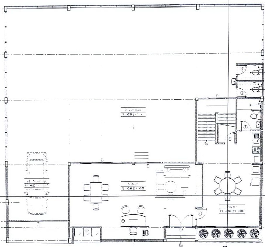
แบบแปลน Type A
แบบแปลนพื้นชั้นล่าง จะเห็นว่าด้านหน้าจะเป็นโซนออฟฟิศ ด้านหลังเป็นส่วนของโกดัง และด้านขวามือเป็นโซน Service ซึ่งจะมีห้องน้ำ,ห้องครัว และส่วนทานข้าว
แปลนพื้นชั้นบน จะมี 2 ห้องนอน อยู่ด้านซ้ายมือ พื้นที่ตรงเป็นโซนห้องรับแขก และด้านขวามือบริเวณบันไดจะเป็นโซน Service ซึ่งจะมีห้องน้ำ,ห้องครัว และส่วนทานข้าว
2. แบบ B มีพื้นที่ใช้สอย 500 ตรม. (โรง 4) มีขนาด กว้าง 20เมตรxลึก20เมตร . มีออฟฟิต 2 ชั้น ชั้น 1 ขนาด20×6 เมตร 120 ตร.ม มีห้องรับแขก ห้องโถง ห้องครัวเคาร์เตอร์ครัว มีห้องน้ำ 1 ห้อง ชั้น 2 ขนาด25×6 เมตร 150 ตร.ม มีห้องเอนกประสงค์ 1 ห้อง ห้องนอน 2 ห้อง ห้องครัวเคาร์เตอร์ครัว ห้องน้ำ 1 ห้อง
-พื้นที่ใช้สอยอาคาร 255 ตารางเมตร
-พื้นที่ใช้สอยโรงงาน 245 ตารางเมตร
-ความสูงตัวโกดัง 10. เมตร.
Type B ตัวอาคารจะมีพื้นที่น้อยกว่าแบบแรก ด้านหน้าอาคารออกแบบสไตล์โมเดิร์น มีพื้นที่โกดังอยู่หลังออฟฟิศ และมีจำนนฟังก์ชั่นน้อยกว่าแบบแรก มีรั้วกำแพงและประตูเหล็กเลื่อนด้านหน้าทางเข้าอาคาร
บริเวณด้านหน้ามีหน้าต่างบานเลื่อนและกระจกบานใหญ่เพื่อความโปร่งโล่ง ด้านข้างอาคารมีพื้นที่ดินเหลือสามารถต่อเติมได้อีกค่อนข้างงเยอะ
ด้านหน้ามีประตูม้วนเหล็กสำหรับเปิดเข้าสู่ตัวโกดัง และทางเข้าตัวออฟฟิศจะอยู่ด้านขวาของตัวอาคาร มีการตกแต่งหน้าตาอาคารด้วยระแนงเหล็กสีดำ และ ผนังอาคารทาสีน้ำตาลอ่อน มีความเป็นโมเดิร์นสวยงามทันสมัย
พื้นที่ภายในอาคารโซนแรกที่เข้ามาจะเป็นส่วนของออฟฟิศ ซึ่งจะสามารเชื่อมต่อเข้าไปห้องต่างๆได้ ซ้ายมือเป็นโกดัง ด้านหลังเป็นห้องน้ำและครัว บันไดขึ้นชั้นสองอยู่ด้านหลังผนัง
ประตูหน้าต่างเป็นกระจก ทำให้โปร่งงโล่งและดูสวยงาม บานเป็นอลูมิเนียมดำ กระจกเขียวตัดแสง พื้นชั้นล่างปูกระเบื้องแกรนิตโต้สีขาว
เดินเข้ามาด้านหลังจะเป็นโซน ห้องน้ำ,ห้องครัวและโซนทานอาหาร โดยแบบนี้มีผนังเป็นฉากกั้นระหว่างโซนออฟฟิศและโซนทานอาหาร มีการแบ่งเป็นสัดส่วนกันอย่างชัดเจน ห้องครัวจะแถมเคาน์เตอร์ครัวปูกระเบื้องและซิ้งค์ล้างจานให้ด้วย
ด้านข้างห้องครัวจะเป็นห้องน้ำ โดยห้องน้ำจะมีการแบ่งส่วนแห้งและส่วนเปียกกันชัดเจน พื้นและผนังปูด้วยกระเบื้องเซรามิค สุขภัณฑ์ American Standard มีหน้าต่างช่องแสง 2 บาน โปร่งโล่งและประหยัดพลังงาน
โซนอาบน้ำมีักบัวอาบน้ำ ผนังปูด้วยกระเบื้องมีลวดลายสีสันสวยงาม
ห้องเก็บของจะอยู่ใต้บันได ภายในจะมีตู้ MDB ควบคุมระบบไฟฟ้าภายในอาคาร
ขึ้นมาชั้นบนจะมีห้องน้ำที่อยู่ข้างบันได สามารถอาบน้ำได้
ห้องน้ำด้านบนนี้จะใช้วัสดุและสุขภัณฑ์เหมือนกับด้านล่าง
บริเวณหน้าโถงบันจะเป็นส่วนรับประทานอาหาร โดยสามารถต่อเติมเป็นห้องครัวด้านบนได้ พื้นที่ภายในมีหน้าต่างและกระจกค่อนข้างเยอะ ทำให้โปร่งโล่งและสว่าง
ถัดเข้าไปด้านขวามือเมื่อขึ้นบันไดมาจะเป็นโซนออฟฟิศ และห้องรับแขก ภายในมีหน้าต่างบานเลื่อน สามารถมองเห็นพื้นที่โกดังได้อย่างชัดเจน
เดินถัดมาจากออฟฟิศชั้นบน จะเป็นโนพักอาศัย ซึ่งจะมี 2 ห้องนอน ขวามือเป็นห้องนอนเล็ก และห้องนอนใหญ่จะอยู่ด้านบนเล่นระดับ ต้องขึ้นบันไดไปอีกเล็กน้อย
ภายในห้องนอนมีหน้าต่างบานเลื่อน 4 ตอน กว้างและโปร่งโล่ง พื้นปูกระเบื้องแกรนิตโต้เหมือนพื้นชั้นล่าง
พื้นที่โกดังจะอยู่ชั้นล่าง ซึ่งจะเชื่อมต่อกับออฟฟิศ สามารถเดินลงบันไดเเละเข้าสู่ตัโกดังได้เลย
ตัอาคารโกดังจะใช้วัสดุเหมือนกับอาคาร Type A แต่พื้นที่ใช้สอยจะน้อยกว่า และความสูงโกดังจะสูง 10 เมตร โครงหลังคาเป็นโครงเหล็กถัก หลังคามุงด้วย Metal Sheet บุด้วยแผ่นกันร้อน มีหลังคาโปร่งแสงทำให้ภายในไม่มืด
มีห้องน้ำ 2 ห้อง ภายในโกดังไม่มีห้องอาบน้ำ หน้าห้องน้ำจะมีอ่างล้างหน้าแบบแขวนผนังอยู่
ประตูเข้าออกโกดังจะเป็นประตูเหล็กม้วนเหมือนกัน รถบรรทุกสามารถวิ่งเข้าออกผ่านประตูนี้ได้
แบบแปลนอาคาร Type B
แปลนอาคารชั้นล่าง จะเห็นว่าพื้นที่ใช้สอยถูกแบ่งออกเป็นสัดส่วน โดยมีผนังกั้น ข้อดีคือแยกสัดส่วนชัดเจนและสามารถทำกิจกรรมต่างๆแต่ละพื้นที่ได้อย่างสะดวก ทางเข้าอาคารเป็นโซนออฟฟิศ ถัดไปด้านหลังจะเป็นส่วนของโกดังและด้านขวามือของแปลนจะเป็นโซนห้องครัวและบันไดขึ้นไปชั้นบน ชั้นล่างจะมี 1 ห้องน้ำ และส่วนโกดังมี 2 ห้องน้ำ
แปลนอาคารชั้นบน ด้านซ้ายมือจะเป็นโซนห้องนอน 2 ห้อง ตรงกลางเป็นโถงสำหรับรับแขกหรือจะทำเป็นออฟฟิศอีกชั้นก็ได้ ด้านขวามือเป็นโซนครัว สามารถรับประทานอาหารและเข้าห้องน้ำได้ในพื้นที่บริเวณนี้ โดยพื้นที่แต่ละห้องประตูหน้าต่างส่วนใหญ่เป็นกระจก ทำให้มีแสงเข้าและห้องไม่มืด
3.อาคาร Type C มีพื้นที่ใช้สอยทั้งงหมด 500 ตรม. (โรง 5) ตัวโกดังขนาด:กว้าง 20เมตรxลึก20เมตร .มีออฟฟิต 2 ชั้น ชั้น 1 ขนาด20×6 เมตร 120 ตร.ม มีห้องรับแขก ห้องโถง ห้องครัวเคาร์เตอร์ครัว มีห้องน้ำ 1 ห้องชั้น 2 ขนาด25×6 เมตร 150 ตร.ม มีห้องเอนกประสงค์ 1 ห้อง ห้องนอน 2 ห้อง ห้องครัวเคาร์เตอร์ครัว ห้องน้ำ 1 ห้อง
-พื้นที่ใช้สอยอาคาร 255 ตารางเมตร
-พื้นที่ใช้สอยโรงงาน 245 ตารางเมตร
-ความสูงตัวโกดัง 10. เมตร.
พื้นที่ Function ต่างๆในอาคารจะคล้ายๆกับแบบ Type B บางแปลงมีลูกค้าซื้อไปและต่อเติมเองด้านข้างและด้านหลัง ทำให้พื้นที่ใช้สอยอาคารเพิ่มขึ้น ใช้ประโยชน์ได้มากขึ้น
แบบแปลนอาคาร Type C แปลนอาคารและฟังก์ชั่น จะเหมือนกับแบบ B ชั้นล่างเป็นพื้นที่ออฟฟิศและด้านหลังเป็นโกดัง ขวามือเป็นห้อครัวและห้อน้ำ
พื้นที่ชั้นบนเป็นส่วนพักอาศัย และมีส่วนห้องโถงไว้รับแขก บริเวณบันไดทางลงเป็นครัวไว้สำหรับรับประทานอาหาร
3.อาคาร Type C มีพื้นที่ใช้สอยทั้งงหมด 990 ตรม. กว้างประมาณ 30×30 เมตร (แบบ C ยังไม่มีบ้านตัวอย่าง0
อาคาร Type C มีการแบ่งสัดส่วนชัดเจน มีพื้นที่ใช้สอยขนาด 990 ตรม.มีห้องรับแขกอยู่ตรงกลาง ซ้ายมือสุดเป็นห้องอเนกประสงค์สามารถปรับเปลี่ยนได้ ด้านขวามือเป็นโซนห้องครัว และห้องน้ำ ด้านหลังเป็นพื้นที่โกดังขนาดใหญ่ มีห้องน้ำ 4 ห้อง ในออฟฟิศชั้นล่าง 1 ห้อง
ผังพื้นชั้นบนแบ่งเป็น โซนห้องครัวบริเวณโถงบันได มีห้องน้ำด้านหลัง ถัดมาจะเป็นพื้นที่รับแขก สามารถปรับเปลี่ยนเป็นออฟฟิศและห้องโถงได้ ด้านซ้ายมือสุดเป็นห้องนอน ภายในอาคารออกแบบโปร่งโล่ง เน้นกระจกและช่องเปิดหลายบาน พื้นชั้นบนมี 1 ห้องนอน 1 ห้องน้ำ
บรรยากาศภายในโครงการ
เปลี่ยนมาชมบรรยากาศในโครงการกันบ้างครับ ภายในโครงการมีลักษณะเป็นถนนตัดตรงยาวลึกเข้าไปตามแนวที่ดิน มีอาคารวางอยู่ข้างถนนทั้ง 2 ฝั่ง ตัวอาคารหันหน้าเข้าหากัน
ตัวอาคารมีทั้งหมด 36 หลัง โดยโครงการเริ่มก่อสร้างจากด้านหน้าเข้าไป ถนนภายในกว้าง 10 เมตร ด้านหลังมีคลอง ตัวอาคารวางผังในแนวตะวันตกเฉียงเหนือและตะวันออกเฉียงใต้ จึงไม่ได้รับแดดแรงมากนักในช่วงบ่าย ข้อดีของโครงการคือมีถนนรอบโครงการ เดินทางสะดวก เข้าออกสบาย ถนนกว้าง
ปัจจุบันโครงการอยู่ระหว่างก่อสร้าง และมีอาคารบางหลังสร้างเสร็จแล้ว ส่วนใหญ่ลูกค้ามักจะต่อเติมพื้นที่ออกไปอีกเพื่อให้ได้พื้นที่ใช้สอยมากขึ้น
ราคาขาย (พ.ย.61)
ลักษณะการขาย มีทั้งขายที่ดินเปล่า และขายที่ดินพร้อมอาคาร โดยลูกค้าสามารเลือกได้ว่าจะให้โครงการสร้างอาคารแบบไหนให้บนที่ดินที่ซื้อ โดยมีรายละเอียดดังนี้
- ขายที่ดินเปล่า โดยขายตารางวาละ 12,000 และแปลมุมขายตารางวาละ 15,000
- ขายอาคารพร้อมที่ดิน โดยอาคาร Type A (พื้นที่ใช้สอย 851 ตรม.พื้นที่ดิน 400 ตารางวา) ขายราคา 12,884,500 บาท ถ้าให้ยกพื้นสูง 1.50 เมตรคิดราคาเพิ่มเป็น 13,384,500 บาท
- อาคาร Type B , C (พื้นที่ใช้สอย 500 ตรม.พื้นที่ดิน 400 ตารางวา) ขายราคาเริ่มต้น 9,550,0000 จนถึง 10,750,000 บาท ถ้าให้ยกพื้นสูง 1.50 เมตรคิดราคาเพิ่มเป็น 11,050,000 บาท
- อาคาร Type D (พื้นที่ใช้สอย 990 ตรม.พื้นที่ดิน 460 ตารางวา) ขายราคา 14,925,000 บาท (อยู่ระหว่างก่อสร้างอาคารแบบพื้นยกระดับ)
- หมายเหตุ
- ราคานี้อาจเปลี่ยนแปลงตามความเหมาะสมโดยมิต้องแจ้งให้ทราบล่วงหน้า
- มีไฟฟ้า 1545 แอมป์ 3 เฟส
- มีระบบน้ำประปานครหลวง
- ราคานี้รวมรั้วคั่นระหว่างอาคารและประตูรั้วหน้าอาคารแล้ว
- ราคาค่าก่อสร้าง 9,500 บาทตรม. (กรณีซื้อที่ดินแล้วให้ทางโครงการก่อสร้างให้)
- ราคานี้ยังไม่รวมค่าโอนและค่าภาษีที่จะเกิดขึ้น ณ กรมที่ดิน
- ถ้าต้องการให้อาคารยกสูง 1.50 เมตร ต้องคิดเพิ่มดังนี้ 500 ตรม. เพิ่ม 300,000 บาท 851-900 ตรม. คิดเพิ่ม 500,000 บาท 910-990 ตรม.คิดเพิ่ม 600,000 บาท
บทสรุปโครงการ
แบบบ้านและวัสดุ
1. การออกแบบตัอาคาร เน้นวางแปลนอาคารตามแนวยาว โดยภายในมีการแบ่งสัดส่วนอย่างชัดเจน เริ่มจากบริเวณทางเข้ามาในอาคารก็มีผนังกั้นแบ่งแยกฟังก์ชั่นต่างๆออกจากกัน เช่น ห้องครัวจะแบ่งออกจากออฟฟิศ แต่พื้นที่ทั้งสองก็ยังสามารถเชื่อมต่อกันได้ ภายในอาคารชั้นล่างถูกออกแบบมาให้สามารถเดินเชื่อมเข้าโกดังได้ ทำให้พื้นที่ต่างๆเชื่อมโยงกันทั้งหมด โดยมีบันไดขึ้นอยู่ด้านในของอาคารซึ่งก็สามารถเชื่อมต่อไปยังชั้นบนได้ ในส่วนของชั้นบนก็จะมีห้องนอนที่เพิ่มเข้ามา โดยออกแบบให้โปร่โล่งสามารถมองเห็นโกดังได้ทั้งหมด
2. วัสดุ ผนังอาคารใช้อิฐก่อฉาบเรียบทาสี พื้นอาคารในออฟฟิศปูกระเบื้องแกรนิตโต้ขนาด 60×60 cm. ฝ้าเพดานยิปซั่มฉาบเรียบทาสีขาว ไฟดาวน์ไลท์ ประตูห้องน้ำเป็นประตูไวนิล กันน้ำกันความชื้นได้ หน้าต่างและประตูทางเข้าเป็นอลูมิเนียมอบสีดำ กระจกเขียวตัดแสงหนา 5 mm. ภายในห้องน้ำปูกระเบื้องพื้นและผนัง สุขภัณฑ์ American Standard ชั้นบนวัสดุหลักๆเหมือนชั้นล่าง ทั้งพื้น ผนังและฝ้าเพดาน ส่วนโกดังพื้นจะเทปูนขัดมันไว้ให้ ผนังก่ออิฐฉาบเรียบทาสี โครงหลังคาเป็นโครงถัก มุงด้วย Metal Sheet บุแผ่นสะท้อนความร้อน ติดหลังคาโปร่งแสงไว้ให้ด้วย ทำให้ภายในโกดังไม่มืด
สิ่งอำนวยความสะดวกภายในโครงการ
ภายในโครงการ มีระบบรักษาความปลอดภัย และกล้องวงจรปิดตลอด 24 ชม. รอบโครงการมีรั้วกำแพง ส่วนทางเข้าโครงการมีป้อมยามและประตูไม้กระดก เพื่อความปลอดภัย ภายในโครงการมีถนนล้อมรอบโดยมีคามกว้างถึง 10 เมตร รถใหญ่และรถบันทุกเข้าออกได้อย่างสะดวกสบาย
สอบถามเพิ่มเติมโทร 092-3797444
Website : http://www.platinumfac.com/project/detail/?project=3




























































































